Control Panel Services
We specialize in designing, fabricating, and commissioning custom control panels for industrial applications.
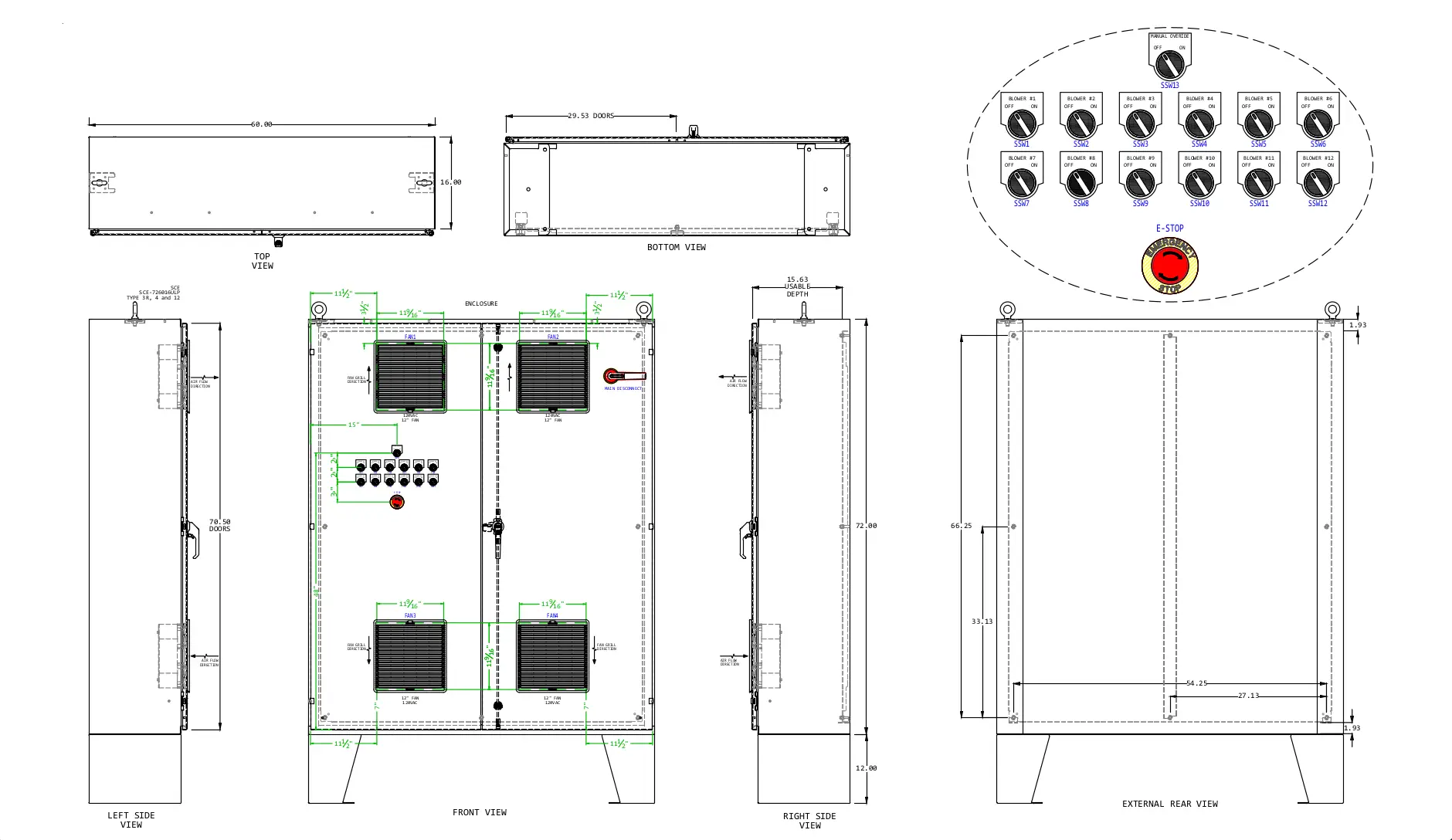
Design & Fabrication
Our in-house fabrication capabilities allow us to maintain complete control over quality and timelines. We can handle every aspect of the design process, from initial concept drawings to final as-built documentation.
- Redlining for issues discovered during review or manufacturing.
- Complete drawings including panel layouts, wiring, and bill of materials.
- In-house fabrication of enclosures and other components for custom needs
- Job site shipping on speedy timelines with minimal hassle.
Critical Review
Our critical review process validates every panel drawing, component, and document before fabrication begins. By eliminating design risks early, we prevent costly delays and ensure your project is built right the first time.
- Design & drawing validation to ensure electrical accuracy, correct wire sizing, and proper enclosure fit.
- Verifying code compliance for NEC standards and UL508A listing requirements.
- BOM accuracy cross-referencing part numbers and quantities against schematics.
- Production readiness delivering organized, error-free documentation for efficient manufacturing.

Testing & Quality Control
Every panel undergoes rigorous testing in our facility before it leaves our shop. Our comprehensive testing protocols ensure your system arrives ready for reliable operation.
- 24V to 600V testing capabilities covering a wide range of industrial applications
- Comprehensive QA testing to verify all circuits perform as specified
Machine Assembly
Beyond control panels, we offer assembly and wiring of full machines.

Ready to Start Your Project?
Let's discuss how we can support your next control system project
Get in Touch